КАПСУЛЬНЫЕ ЛИФТЫ

Прорывные инженерные решения, переопределяющие стандарты отрасли

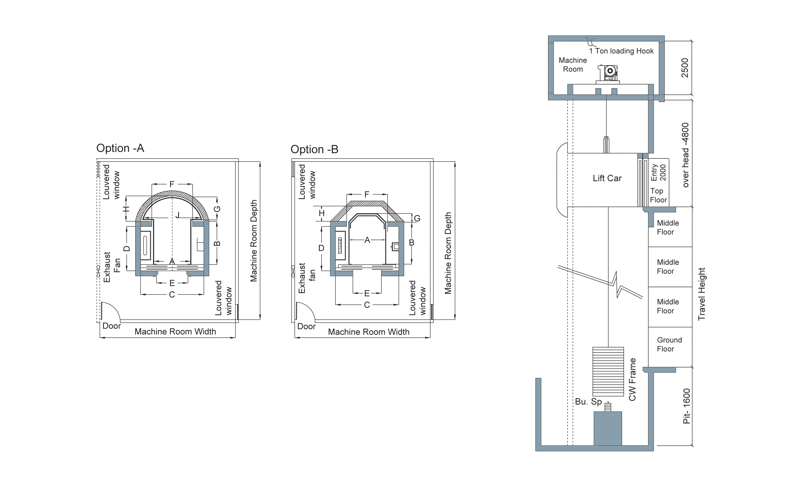
Капсульные лифты

  • Эти лифты могут быть установлены на фасаде здания или в вестибюле.

  • Установка таких лифтов полностью меняет внешний вид здания.

  • В данных лифтах используется сверхсовременная технология.

  • Вместимость трехстекольных капсул варьируется от 6 до 35 человек.

  • Пятистекольные капсулы доступны для минимальной вместимости от 13 человек.

  • Также разрабатываются лифты восьмиугольной формы.

  • Возможно оснащение мраморным полом с подсветкой, куполообразными крышами и декоративным оформлением кабины.

  • Уникальная особенность - возможность установки стеклянных дверей.

  • Стеклянная капсула дополнительно подчеркивает эстетику конструкции.

  • Лифты могут быть как тяговыми, так и гидравлическими - в зависимости от расположения машинного отделения.

  • За исключением дизайна кабины, все остальные характеристики соответствуют стандартным пассажирским лифтам.

Инфракрасные дверные датчики

Мы предлагаем клиентам высококачественные инфракрасные дверные датчики для установки на дверях лифтов. Эти датчики оснащены сенсорами для распознавания людей или грузов, входящих в лифт. Доступные в различных модификациях, наши детекторы сочетают инновационный дизайн с надежной функциональностью.

Доступные варианты комплектации
Скорость1.00 - 1.5 м/с
Тип кабиныОдносторонний обзор / Трехсторонний обзор / Полукруглый обзор
Отделка кабины

Стекло с порошковым покрытием (металл)

Стекло с нержавеющей сталью (сатинированная)

Стекло с дизайнерской сталью (сатинированная)

Отделка дверей

Автоматические двери с порошковым покрытием

Автоматические двери из нержавеющей стали (сатинированные)

Автоматические двери из дизайнерской нержавеющей стали

Автоматические двери с титановым золотым покрытием

Стеклянные двери в рамке из нержавеющей стали

Кнопки
панели управления
Микроэлектронные кнопки, сенсорные кнопки
Дисплей
панели управления
16 млн цветов USD
Отображение

7-сегментный цифровой LED-дисплей

Точечный матричный дисплей, LCD-дисплей

Получить брошюру. Кликните здесь