БОЛЬНИЧНЫЙ ЛИФТ

Безопасность начинается с тебя

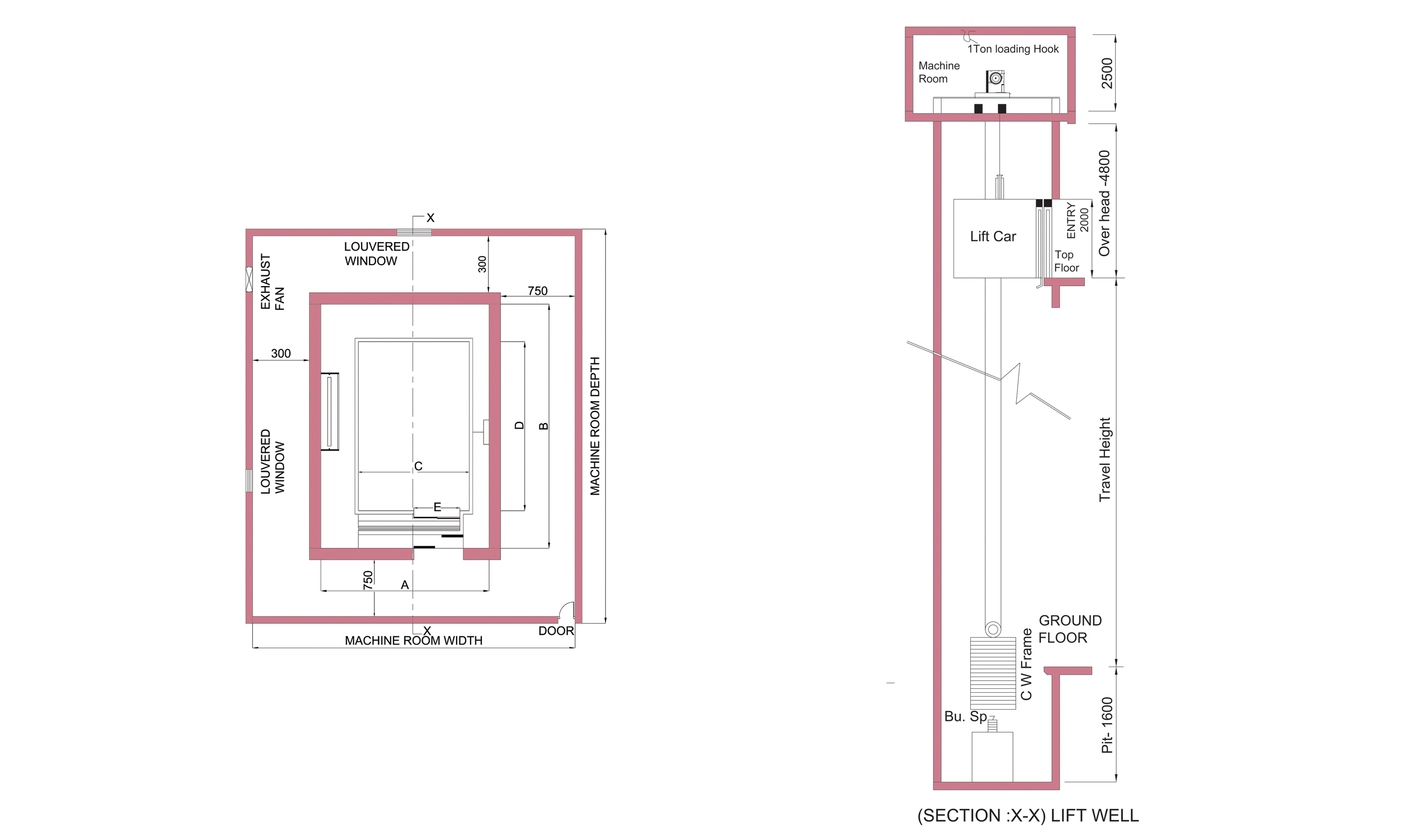
Больничные лифты

Больничные лифты предназначены для оперативной транспортировки пациентов в медицинские учреждения. Широкий диапазон размеров кабин позволяет удовлетворить различные требования современных больниц.

Мы учли все факторы, связанные с перевозкой пациентов, чтобы создать самые надежные медицинские лифты для больниц, домов престарелых, клиник и других медицинских учреждений.

Наши медицинские лифты отличаются исключительно плавным и тихим ходом даже при интенсивной эксплуатации. Они оснащены современными системами позиционирования для точного картирования шахты лифта со всеми этажами. Это обеспечивает высокоточное выравнивание для безопасного и удобного использования, что особенно важно для пожилых людей и инвалидов, а также при транспортировке каталок и инвалидных колясок.

Преимущества и особенности

  • Коррозионностойкая конструкция устойчива к дезинфицирующим средствам, используемым в медучреждениях.

  • Отсутствие электромагнитных помех для медицинского оборудования.

  • Функция аварийной посадки с питанием от аккумулятора гарантирует, что пациенты никогда не окажутся в заточении.

  • Система привода VVVF обеспечивает плавную и безопасную транспортировку.

  • Мягкое освещение в кабине создает спокойную и комфортную атмосферу для пациентов.

  • Просторная конструкция и дополнительная панель управления (COP) обеспечивают доступность лифта для всех.

Доступны различные варианты
Скорость1.00 - 1.5 м/с
Тип кабиныС односторонним обзором / С трехсторонним обзором / С полукруглым обзором
Отделка кабины

Стекло с кабиной с порошковым покрытием (MS)

Стекло с кабиной из нержавеющей стали с отделкой "хай-лайн"

Стекло с кабиной из стали с дизайнерской отделкой и отделкой "хай-лайн"

Отделка дверей

Автоматические двери с порошковым покрытием (MS)

Автоматические двери из нержавеющей стали с отделкой "хай-лайн"

Автоматические двери из нержавеющей стали с дизайнерской отделкой

Автоматические двери с отделкой "титановое золото"

Стеклянные автоматические двери в рамке из нержавеющей стали

Кнопки
панели управления
Поверхностные микроэлектронные кнопки, сенсорные кнопки
Дисплей
панели управления
16 мм (возможна опечатка, оригинал: 16m. USD)
Отображение

Семисегментный цифровой LED-дисплей

Цифровой точечно-матричный дисплей. LCD-дисплей

Получить брошюру. Кликните здесь